Key Features
- Delightful cottage boasting character and period charm throughout
- Located within central Sandwich, Kent
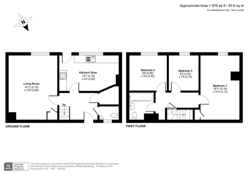
- Three generous bedrooms and a family bathroom
- Within walking distance of local shops, amenities and parking facilities
- Sunny aspect, courtyard garden
- Offered with no onward chain
Full Property Description
Nestled in the heart of historic Sandwich, this well presented mid-terrace period cottage exudes character and charm, offering a delightful blend of traditional features and modern comfort. From exposed ceiling beams to feature fireplaces, this home is rich in personality and warmth.
Upon entering, the welcoming hallway leads to a convenient lavatory and cloakroom, before opening into the well-proportioned kitchen diner—complete with a striking feature fireplace and direct access to the sunny rear courtyard. The spacious living room boasts an impressive inglenook fireplace, creating a cosy yet elegant space perfect for relaxation.
Upstairs, a central landing connects to a generously sized main bedroom alongside two further well-appointed bedrooms. The three-piece bathroom, while dated, remains fully functional and offers scope for future enhancement.
Externally, the private courtyard garden enjoys a sunny aspect, providing an ideal setting for outdoor dining or quiet moments of relaxation.
Located within central Sandwich, this characterful home is perfectly positioned for easy access to the town’s charming shops, cafés, and transport links, making it an ideal choice for those seeking a blend of history, convenience, and timeless appeal.