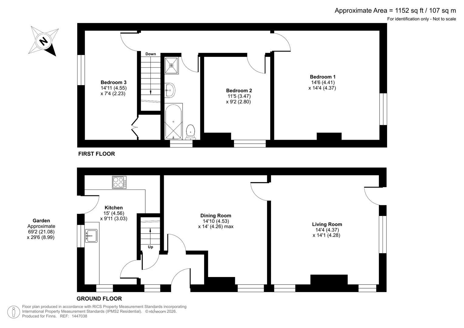
Key Features
- Grade II listed semi-detached period cottage in a sought-after village setting
- Beautifully presented interior blending character features with modern finishes
- Well-equipped kitchen with integrated appliances and direct garden access
- Dining room with exposed beams and fireplace; cosy sitting room with open fire
- Three spacious double bedrooms and a well-appointed family bathroom
- Rear garden mainly laid to lawn with patio area and mature planting; parking for two cars
- No Chain
Full Property Description
This charming Grade II listed semi-detached cottage is an attractive period home, beautifully presented and full of character, set within a desirable village location. The property offers a stylish blend of original features and modern finishes, creating a warm yet refined living space.
The kitchen is well-appointed with a comprehensive range of integrated appliances and enjoys views over the garden, with direct access outside. The adjoining dining room features exposed beams and a characterful fireplace, adding to the period charm. At the front, the sitting room is equally inviting, complete with exposed ceiling timbers and an impressive open fireplace.
Upstairs, a pleasant landing leads to three generously sized double bedrooms. The family bathroom is well designed, offering both a bath and separate shower, along with a WC and washbasin.
We understand from the owner there are three accessible loft spaces, of which one has a loft ladder, is carpeted with electricity and has two windows allowing natural light and could be used as a home office.
Outside, a gravel driveway to the side provides parking for up to two vehicles, with gated access leading to the rear garden. The garden is mainly laid to lawn and complemented by a paved seating area, along with mature planting that includes a variety of shrubs, flowers, ground cover, and small trees.
The property is situated in the picturesque village of Wickhambreaux, just east of Canterbury, surrounded by scenic countryside ideal for walking and cycling. The village itself benefits from a well-regarded pub and an OFSTED outstanding-rated primary school.
Canterbury city centre is within easy reach, offering an extensive range of shopping, leisure facilities, and highly regarded schools, including grammar options, as well as colleges and universities. Canterbury West station provides high-speed rail services to London St Pancras in approximately 56 minutes, while the M2 and A2 offer good road links to London.