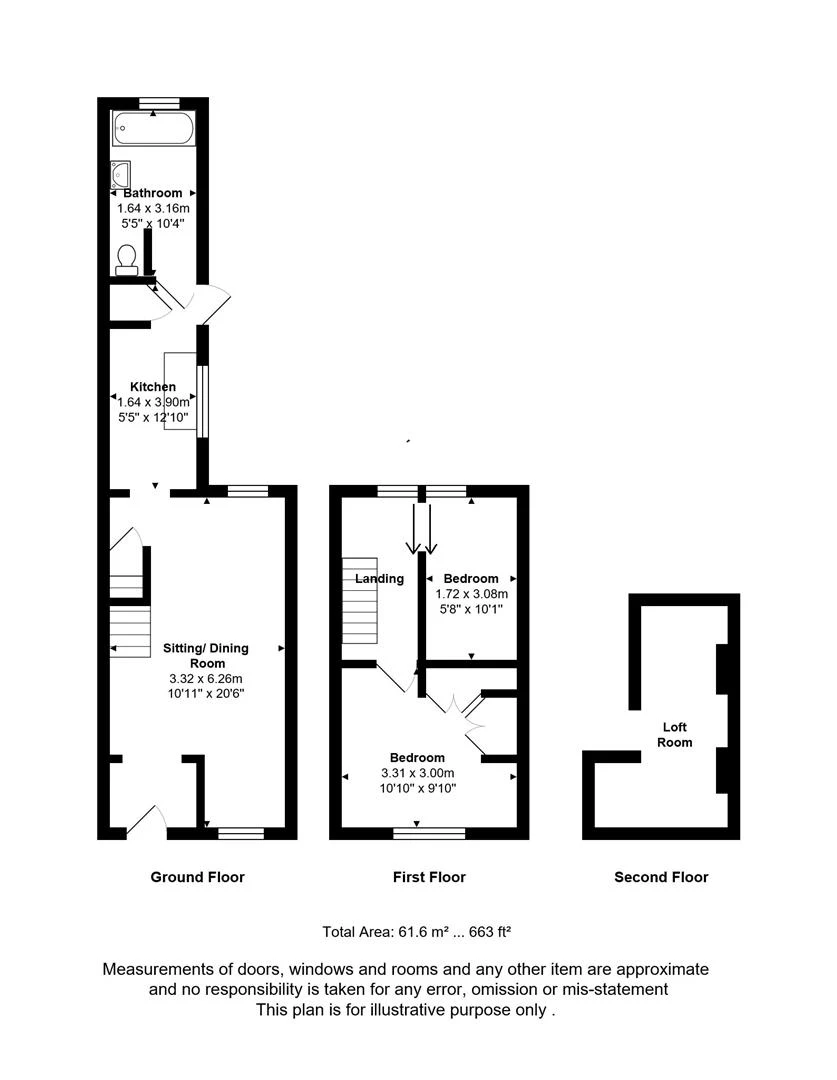
Key Features
- Two Bedroom City Centre Cottage
- Grade II Listed
- Would Benefit From Some Modernisation
- Loft Space
- Courtyard Garden
- Planning Permission was granted in 2022 for a 2 storey rear extension.
Full Property Description
A charming Grade II Listed two bedroom cottage situated in a quiet street within the City walls and just a short walk from the High Street and all of the amenities the City centre has to offer.
The accommodation consists of an open plan sitting room/dining room, kitchen and downstairs bathroom.
Upstairs, the landing leads to bedroom one to the front and the study/bedroom two to the rear. It is thought this space could be reconfigured to have a staircase leading to the loft which could create a larger bedroom in the loft space – subject to planning and listed building consent.
Planning permission was granted in September 2022 for a 2 storey double height rear extension. Full plans can be viewed at the Canterbury City Council website under reference CA/22/00673.
Ideally located within Canterbury’s historic city walls, it is just a short stroll from the vibrant High Street, Canterbury Cathedral, and Canterbury West railway station with its high speed service to London St Pancras in 56 minutes. Despite its central location, the property enjoys a peaceful setting, tucked away from the city’s hustle and bustle.
Residents’ parking permits are available to purchase from Canterbury City Council.