Key Features
- A Charming Two Bedroom Cottage
- No Chain
- Set In An Idyllic Village Position
- Two Reception Rooms
- Beautiful Gardens
- Off Road Parking & Detached Garage
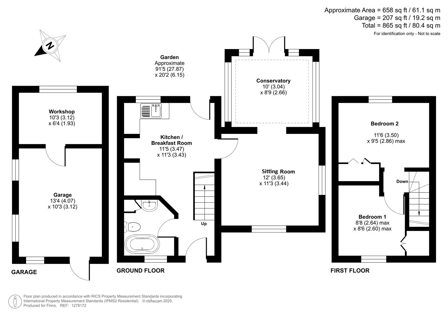
Full Property Description
A beautifully presented two bedroom cottage set in a tucked away position in one of East Kent’s most picturesque villages.
The front door opens to the entrance hall and leads through to the kitchen which looks over the rear garden and has a good range of wall and base units and spaces for appliances. The sitting room has a wonderful vaulted ceiling and exposed beams and leads through to the stunning conservatory which benefits from a glass roof and a wood burner and has lovely views over the garden. The family bathroom is also on the ground floor and comprises a bath, w.c and wash hand basin. Upstairs, the landing leads to the two bedrooms.
Outside, the cottage is set behind its pretty front garden. There are double gates to the side of the property which lead to the off road parking area and to the detached garage which benefits from power and a useful workshop to the rear.
The gardens are a real highlight of the property and are clearly a labour of love for the current owners with a manicured lawn, many established trees and shrubs and a beautiful wisteria.
Wickhambreaux is an idyllic village just five miles from the Cathedral City of Canterbury and has a popular Public House - The Rose - an OFSTED ‘Outstanding’ rated primary school and a beautiful 13th Century church, along with miles of walks through open countryside right on the doorstep.
Wickhambreaux is situated just 5 miles east of the Cathedral city of Canterbury, an ancient thriving city with an abundance of cafés, restaurants and shopping facilities.
Educationally Canterbury is very well provided for with two universities, the world renowned King’s school, the Simon Langton Boys’ and Girls’ Grammar Schools, Barton Court Grammar, Kent College and St Edmund’s, all within a 15 minute drive.
Transport links are excellent with Canterbury West Station being just a 15 minute drive away with its high speed service to London St Pancras in just 56 minutes.