1/21
House - Terraced Main Photo House - Terraced Main Photo House - Terraced Main Photo House - Terraced Main Photo House - Terraced Main Photo House - Terraced Main Photo House - Terraced Main Photo House - Terraced Main Photo House - Terraced Main Photo House - Terraced Main Photo House - Terraced Main Photo House - Terraced Main Photo House - Terraced Main Photo House - Terraced Main Photo House - Terraced Main Photo House - Terraced Main Photo House - Terraced Main Photo House - Terraced Main Photo House - Terraced Main Photo House - Terraced Main Photo House - Terraced Main Photo
For Sale

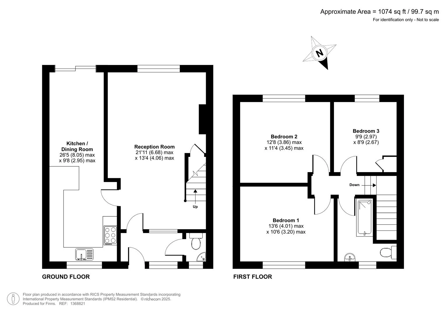
Three Bedroom Terraced House

£325,000 Guide Price

Sandown Road, Sandwich

Set back from the road and enjoying enclosed gardens to both the front and rear, this deceptively spacious mid-terraced modern family home offers...

3 BED | 1 BATHROOM | 2 RECEPTIONS

Book Viewing

Try one of our useful calculators ...

Mortgage Calculator

Calculate

Stamp Duty Calculator

You will have to pay £XXX in stamp duty.

Please note the above figure will be different if you are purchasing this as an additional property.