Key Features
- Two Bedroom Terrace House
- Brand New Double Glazing
- New Carpets Throughout
- Garage & Two Additional Allocated Parking Spaces
- Front & Rear Gardens
- Convenient Location Off New Dover Road
- Walking Distance to Canterbury City Centre
- No Chain
Full Property Description
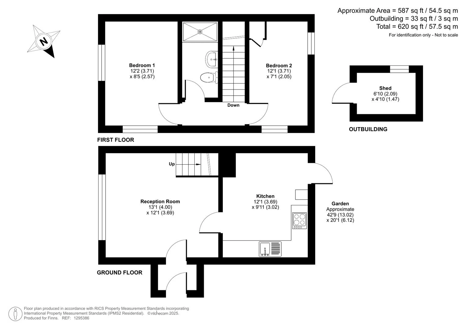
A beautifully presented two bedroom terrace home in a very convenient location within easy walking distance of the City centre with the added benefit of a garage and 2 allocated parking spaces accessed directly from the back garden.
The front door opens to the entrance porch and through to the sitting room which has brand new carpets and a window with an outlook to the front garden. The kitchen is to the rear of the house and has a range of wall and base units, spaces for appliances and a door leading to the back garden.
Upstairs, the landing leads to the two bedrooms and family bathroom.
Outside, the rear garden is fence enclosed and measures approximately 42’ x 13’ and is mainly laid to lawn and a patio.
This property has the benefit of a rear gate leading directly to the two allocated parking spaces and garage.
This lovely terraced home is in the popular area of South Canterbury off the New Dover Road, in a quiet, very desirable, cul-de-sac just a short distance to Kent & Canterbury Hospital and Simon Langton Boys’ and Girls’ Grammar Schools. Sainsbury's convenience store is within a close walk and the property is a short drive or a longer walk to Canterbury West Station which has the high speed to St Pancras (56 minutes). Canterbury East is within walking distance. There are excellent road links via the A2 towards the coast & London.
The property is located within walking distance of Canterbury High Street with all its amenities and the historic Canterbury Cathedral. These include The King's Mile, the Whitefriars Shopping Centre, the University of Kent, Canterbury Christ Church University and The Marlowe Theatre. Rochester Avenue is also close to the Chaucer Hospital, Kent and Canterbury Hospital and the Spitfire Cricket Ground.