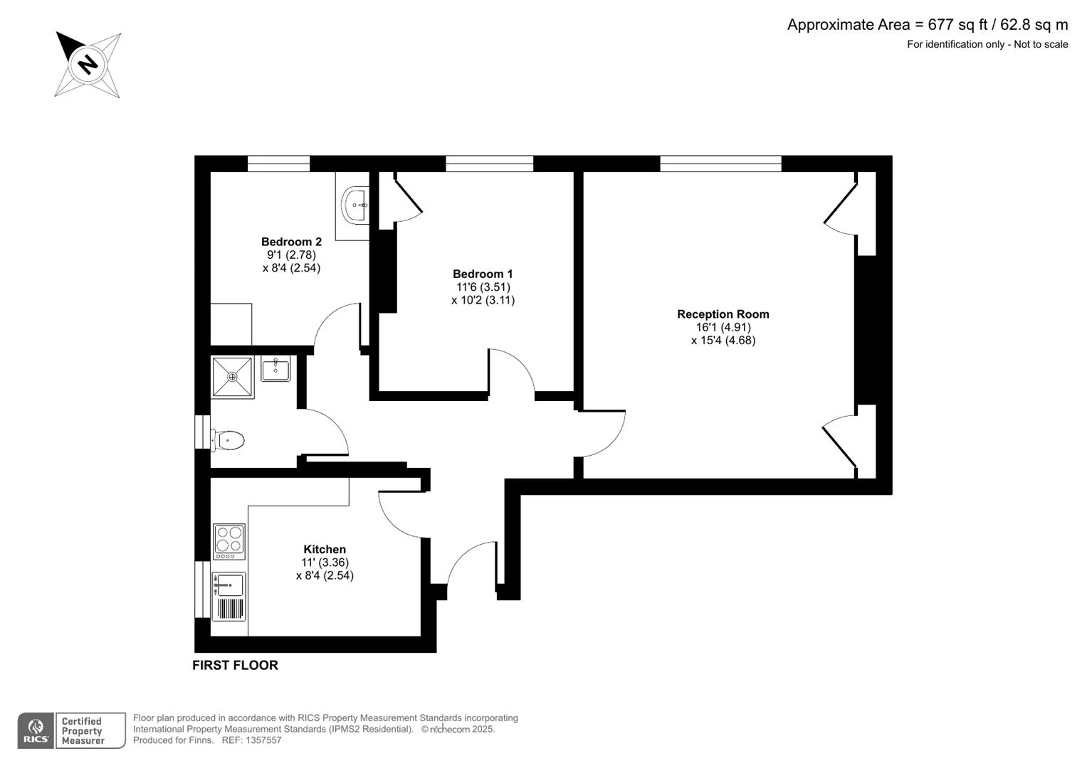
Key Features
- Two Bedroom First Floor Apartment
- In Need Of Some Modernisation & Improvement
- No Chain
- Parking Space
- New 99 Year Lease To Be Granted Upon Sale
Full Property Description
A rare opportunity to purchase a two bedroom, first floor apartment in a grand Victorian building located on the popular New Dover Road just a 10 minute walk from Canterbury city centre. The apartment has allocated parking, wonderfully high ceilings, bright and spacious rooms and would now benefit from some modernisation & improvement.
From the ground floor the front door opens to the communal entrance and stairs lead to the first floor. The front door to the apartment opens to the entrance hall and through to the spacious sitting room which has wonderfully high ceilings, two original cupboards and a fireplace. Both bedrooms are of a good size and bedroom one benefits from a built in cupboard.
The kitchen is fitted with a range of wall and base units with spaces for appliances and a breakfast table. The bathroom comprises a shower, wash hand basin and w.c.
New Dover Road is a desirable street close to central Canterbury, lined with period properties and just a 10 minute walk from the High Street and Whitefriars Shopping Centre. Local amenities are within easy reach with M&S, Sainsbury’s Local and Tesco Metro all nearby. Cultural highlights such as the Marlowe Theatre, Canterbury Cathedral and a diverse array of restaurants, bars, and cafés are all nearby. Canterbury West railway station is just over a mile away with its high speed service to London St Pancras in just 56 minutes.
Leasehold: We understand from the owners that a new 99 year lease will be granted upon a sale.
Service Charge: £796 per year.
Ground Rent: Included within the service charge.
We have been given the above information by the vendors and suggest the purchaser and their solicitor checks this before exchange of contracts.