Key Features
- One Bedroom First Floor Retirement Apartment
- Lift
- Modern Kitchen & Bathroom
- Double Glazed Throughout
- Electric Heating
- Emergency Helpline System
- On Site Parking For Residents
- Residents Lounge
- Guest Suite
- No Chain
Full Property Description
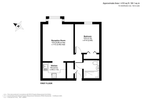
Mulberry Court is a very popular and attractive development of retirement apartments located in a particularly convenient ‘tucked away’ position in Stour Street. This well presented first floor apartment is within a couple of minutes walk of the High Street.
The front door leads to the entrance hall and through to the sitting room which has a window with a pleasant outlook over the front of the development.
The kitchen is well fitted with a range of wall and base units, an electric oven and hob and a space for a fridge/freezer.
The bedroom has built in wardrobes and the window has the same pleasant outlook to the front.
The shower room has a walk in shower, w.c and wash hand basin with vanity unit.
Mulberry Court benefits from a residents lounge which is host to a good deal of regular social events. There is a guest suite which is bookable through the house manager and a communal laundry room. There is also residents parking on site. The house manager is on site and is available for residents during office hours.
Lease: Approximately 62 years remaining.
The service charge for 1 April 2025 to 31 March 2026 is £3516.16.
The ground rent is currently £37.50 per quarter.
We have been given the above information verbally and suggest the purchaser and their solicitor checks before exchange of contracts.