1/9
Development Main Photo Development Main Photo Development Main Photo Development Main Photo Development Main Photo Development Main Photo Development Main Photo Development Main Photo Development Main Photo
For Sale

Development

£250,000 Price Guide

Jubilee Road, Sandwich, CT14 0DP

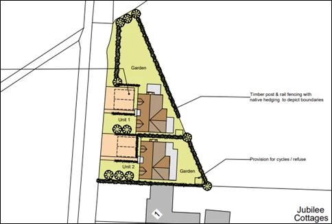
A Semi-Rural Development Opportunity with Planning Consent for the erection of two detached dwellings

Book Viewing

Try one of our useful calculators ...

Mortgage Calculator

Calculate

Stamp Duty Calculator

You will have to pay £XXX in stamp duty.

Please note the above figure will be different if you are purchasing this as an additional property.