Key Features
- 2.84 Acres (1.15 Hectares)
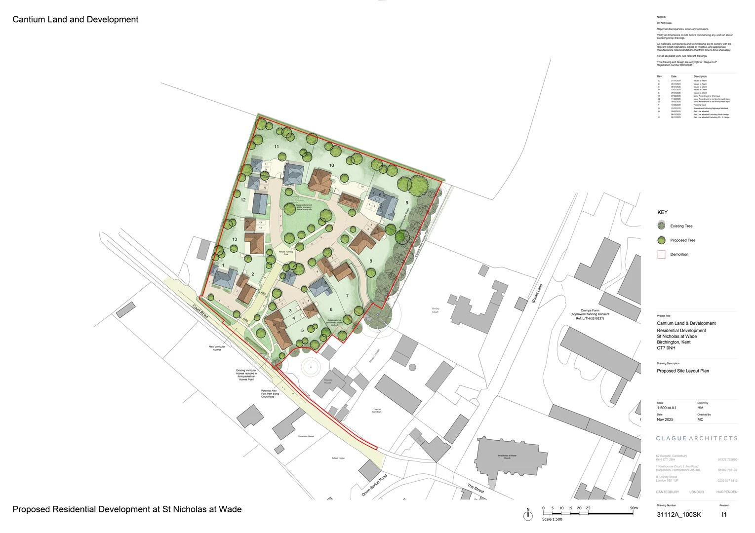
- Resolution To Grant Planning Consent for 13 Houses
- In a Sought After Village
- On the Edge of the Conservation Area
- Excellent Transport Links
- Offers invited by Close of Business on Monday 2nd February 2026
Full Property Description
We have been instructed to invite offers on this property by CLOSE OF BUSINESS on MONDAY 2nd FEBRUARY 2026. Please contact the office on 01227 454111 for full details.
If you have already made an offer, you will need to resubmit it by this date so please contact the office for details as above.
If you have any questions, or would like access to the Data Vault, please do not hesitate to contact Nicholas Rooke.
A 1.15 Hectare Greenfield Site With Resolution to Grant Detailed Planning Consent for 13 Dwellings
Situated
The site is on the northern edge of the village of St Nicholas at Wade on the Isle of Thanet, conveniently located for the A299 Thanet Way dual carriageway, leading to the M2 at Faversham. Railway stations are at Birchington (3½ miles) and Faversham (18 miles) with services to London Victoria and St Pancras. Thanet Parkway (6½ miles) has a high speed service to London St Pancras in just over 70 minutes. Local services between Canterbury & Ramsgate stop at Minster (4½ miles).
The village of St Nicholas at Wade is a thriving settlement centred around its historic village core with two pubs, a village store, historic church and primary school. Canterbury (10½ miles) and the Isle of Thanet towns all have excellent schooling for all ages and abilities. The north Kent coastline is a short distance away. Westwood Cross shopping centre is 8½ miles distant.
Description and Site Area
This 1.15 hectare (2.84 acres) site comprises a single level field, formerly a campsite and adjoining farmland. It is located on the edge of the village with an open aspect but close to the school and community facilities of the village. The site is shown edged red on the plan.
Planning
Thanet District Council resolved to grant detailed planning consent for 13 dwellings (reference: F/TH/25/0319) on 15th November 2025, with authority delegated to Officers to deal with the Section 106 Agreement.