Key Features
- Unlisted 2 Bedroom Period Coach House
- Located Equidistant Between Canterbury and Ashford
- Private Location Close to the Village Square, Set in an Attractive Gated Courtyard
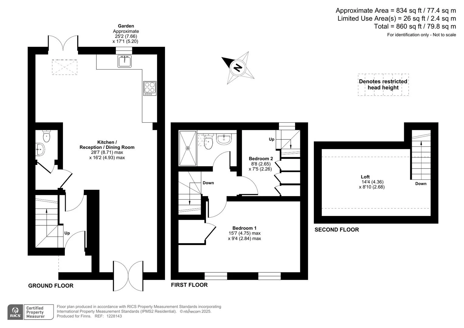
- 2 Bedrooms
- Useful Loft Storage
- Spacious L-Shaped Sitting/Dining Room
- High Ceilings, Exceptionally Well Presented
- Modern Kitchen, pretty Courtyard Garden
- Allocated Parking
- 999 Year Lease from 21 July 2001
Full Property Description
A charming 2 bedroom converted coach house comprising part of the former Chilham Castle Stable Block and set in one of Kent’s most picturesque villages equidistant between Canterbury and Ashford. With its medieval square, surrounded by timber framed houses of Tudor origin, a 12th Century church and grand Chilham Castle, the village’s elevated position gives breathtaking views across the surrounding countryside. Set on both the North Downs Way and historical Pilgrims’ Way (which leads to Canterbury), it’s no wonder that this exquisite old English village setting has featured in numerous film and TV productions and as such remains a desirable location to live.
We understand from the vendors that the service charge is approximately £748 per year on average.