Key Features
- Over 60s Retirement House
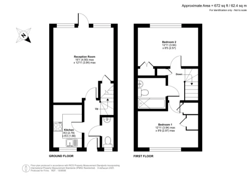
- Two Bedrooms
- Sitting Room With Direct Access To Gardens
- Patio Area
- Electric Heating
- No Forward Chain
- Situated Within The City Walls
- Communal Laundry Facilities
- On Site Scheme Manager
- Emergency Pull Cord System
Full Property Description
A superb two bedroom house for the over 60s, available in the ever-popular Chantry Court Retirement Development situated within the City Centre.
The front door opens to the entrance hall which benefits from a downstairs cloakroom. The sitting room is to the rear and has a lovely outlook over the rear gardens and a door leads to the patio.
The kitchen is to the front and has a good range of wall and base units and spaces for appliances.
Upstairs, the landing leads to the two bedrooms and the bathroom.
The development benefits from a laundry room and a guest suite which is booked directly through the house manager for a small charge.
The house benefits from having direct access to the more secluded rear garden area where residents have a patio seating area accessed straight from the sitting room doors. The pretty gardens are mainly laid to lawn with many established flower borders. All garden maintenance is included within the service charge.
Service Charge: £343.07 per month.
Ground Rent: £170.00 per annum.
Lease: Runs until 1st January 2263.